آپلود ویدئو | ورود | ثبت نام


deluxeboy-

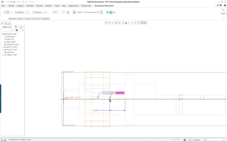
Lesson 20 pt1 Valve Assembly Creo Parametric 3.0


Embed گزارش تخلف

مشاهده 1328

دریافت ویدئو: حجم کم کیفیت بالا
توسط deluxeboy در 08 Jul 2015
توضیحات:

PTC Creo Parametric 3.0

لغات کلیدی:

CATIA, CAD, PTC, PTC Creo Parametric 3.0, AutoDESK, AutoCAD, NX, Unigraphics, SolidWorks, Pro/E, Pro/ENGINEER WIldfire, Parametric Technology Corporation, En...


comments powered by Disqus

درباره ما | تماس با ما | قوانین تخته سفید